Description
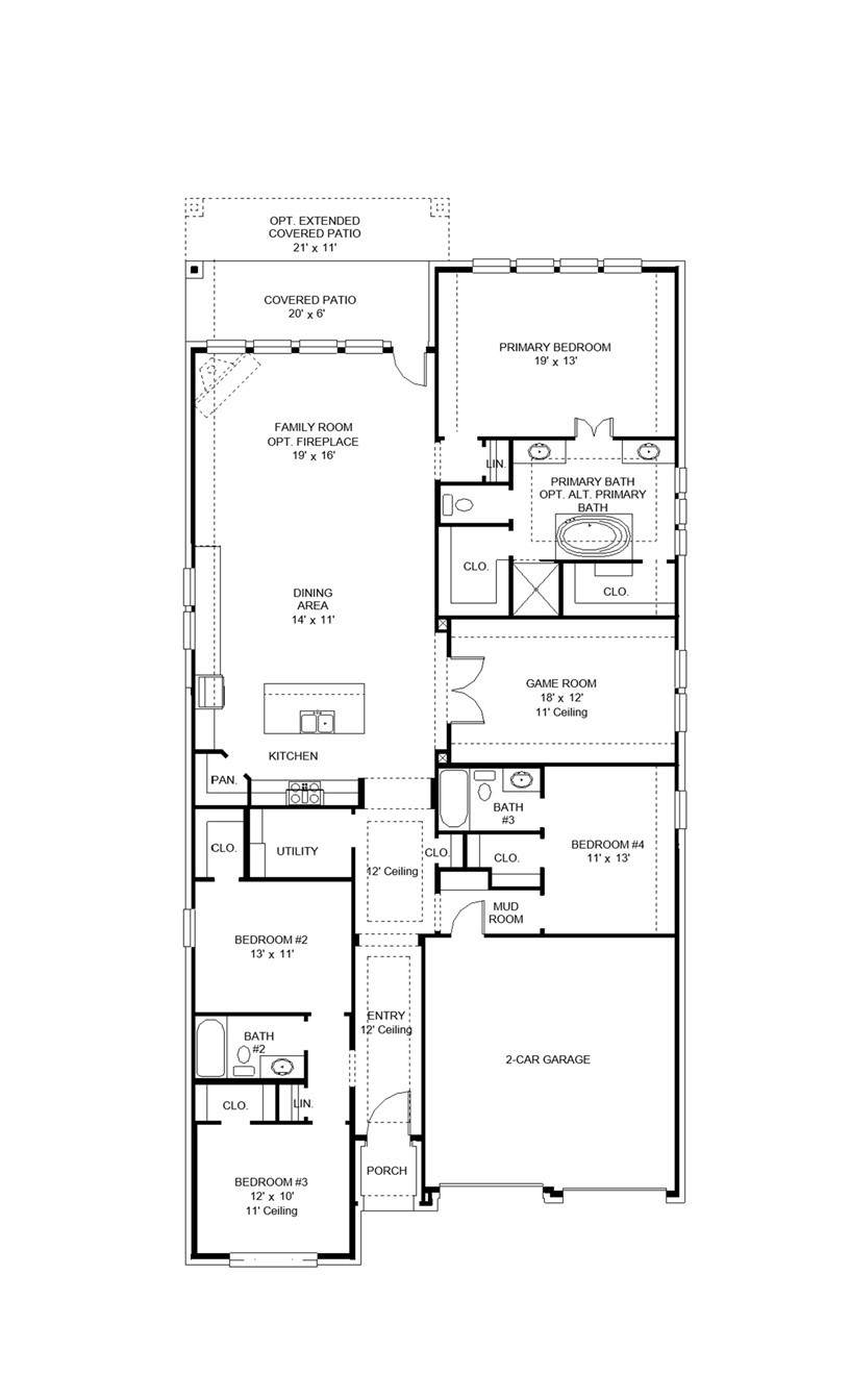
Welcoming entry features 12-foot ceiling. Open kitchen offers generous counter space, a 5-burner gas cooktop, corner walk-in pantry and inviting island with built-in seating space. Dining area flows into open family room with a wood mantel fireplace and wall of windows. Game room with French doors just across from kitchen. Primary suite includes bedroom with wall of windows. Dual vanities, freestanding tub, separate glass-enclosed shower and two-walk in closets in primary bath. Guest suite includes full bath. Abundant closet space throughout. Extended covered backyard patio. Mud room off two-car garage.
-
4BEDS
-
N/AACRES
-
3BATHS
-
01/2 BATHS
-
2,443SQFT
-
$225$/SQFT
School Information
Description
Welcoming entry features 12-foot ceiling. Open kitchen offers generous counter space, a 5-burner gas cooktop, corner walk-in pantry and inviting island with built-in seating space. Dining area flows into open family room with a wood mantel fireplace and wall of windows. Game room with French doors just across from kitchen. Primary suite includes bedroom with wall of windows. Dual vanities, freestanding tub, separate glass-enclosed shower and two-walk in closets in primary bath. Guest suite includes full bath. Abundant closet space throughout. Extended covered backyard patio. Mud room off two-car garage.
