Description
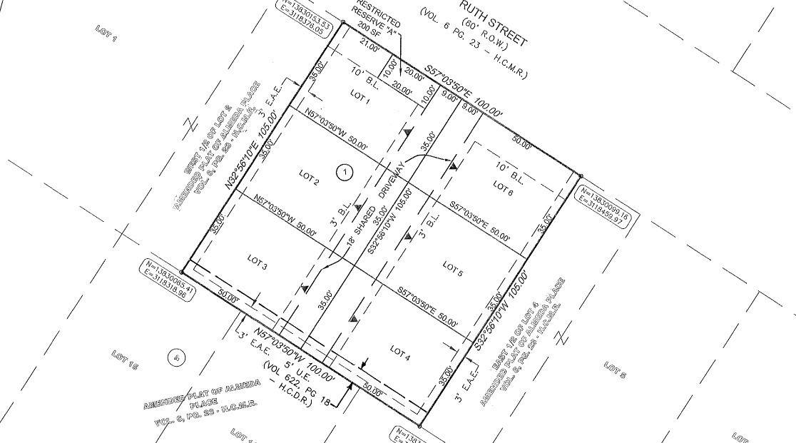
Build in Houston's thriving urban core! This oversized 10,298 sq ft lot comes fully cleared with approved permits replated for 6 lots, civil plans, and ready-to-go architectural designs. Located just minutes from down Downtown, The Museum District, Texas Medical Center, and University of Houston, this property is ideal for high-end single family, duplex, Condos or townhome development. We can help you build and break ground immediately. Rare turnkey investment in a rapidly appreciating area.
-
0BEDS
-
N/AACRES
-
0BATHS
-
01/2 BATHS
School Information
Description
Build in Houston's thriving urban core! This oversized 10,298 sq ft lot comes fully cleared with approved permits replated for 6 lots, civil plans, and ready-to-go architectural designs. Located just minutes from down Downtown, The Museum District, Texas Medical Center, and University of Houston, this property is ideal for high-end single family, duplex, Condos or townhome development. We can help you build and break ground immediately. Rare turnkey investment in a rapidly appreciating area.
