Description
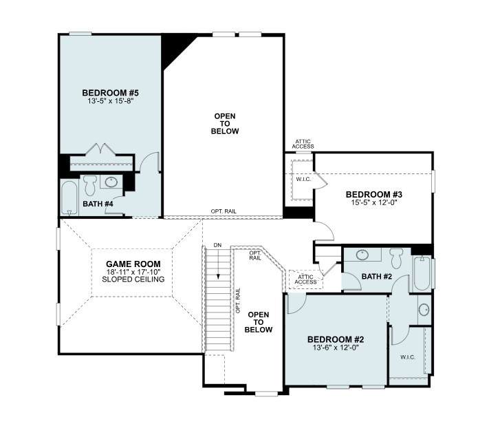
READY IN FEBRUARY! The San Gabriel floorplan features 5 bedrooms, 4.5 bathrooms, a 3-car garage, and 3,326 square feet of living space. The open-concept layout includes a 2-story foyer, study, spacious kitchen, and family room with high ceilings. The tall ceilings and large windows create a bright and airy space. The kitchen boasts luxurious countertops, stainless steel appliances, a large kitchen island, and 42" upper cabinets. The owner's suite is accessed through a private entry off the family room. It features beautiful sloped ceilings and an extended bay window. The owner's retreat includes an impressive walk-in closet, an enclosed toilet room, a linen closet, an oversized shower, and a soaking tub. Outside, there's an extended covered patio, perfect for creating your backyard oasis. Upstairs, there's a spacious game room with sloped ceilings, a full bathroom, and three additional bedrooms, each with a walk-in closet. Contact us to learn more.
-
5BEDS
-
N/AACRES
-
4BATHS
-
11/2 BATHS
-
3,326SQFT
-
$222$/SQFT
School Information
Description
READY IN FEBRUARY! The San Gabriel floorplan features 5 bedrooms, 4.5 bathrooms, a 3-car garage, and 3,326 square feet of living space. The open-concept layout includes a 2-story foyer, study, spacious kitchen, and family room with high ceilings. The tall ceilings and large windows create a bright and airy space. The kitchen boasts luxurious countertops, stainless steel appliances, a large kitchen island, and 42" upper cabinets. The owner's suite is accessed through a private entry off the family room. It features beautiful sloped ceilings and an extended bay window. The owner's retreat includes an impressive walk-in closet, an enclosed toilet room, a linen closet, an oversized shower, and a soaking tub. Outside, there's an extended covered patio, perfect for creating your backyard oasis. Upstairs, there's a spacious game room with sloped ceilings, a full bathroom, and three additional bedrooms, each with a walk-in closet. Contact us to learn more.
